

![]() |

![]() |
![]() |
The main aim of the study is to identify the practicality and possibility of applying the required modifications, demolition and refurbishment of the existing structural system for TB2, in addition to the appropriate structural system for the proposed extensions which should satisfy building's function, type, shape and fulfill the structural basic requirements of safety, stability and durability.

Cairo Airport Company (CAC) set out a strategic framework for the development of Cairo International Airport. The plan started with Terminal Building 3 (TB3) and the new runway (OSRR- 23LL). Construction and functionality has been successfully completed. Cairo Airport Company (CAC) plans to renovate Terminal 2 to meet a forecast demand for air travel rising to 7.5 million passengers per year by 2025. Cairo Airport Company’s preferred option for facilitating this predicated rise in demand is to undertake development based on an expansion of the existing terminal building facilities, together with an expansion of other terminal infrastructure and facilities.
The plan is to refurbish Terminal 2 at Cairo International Airport after the successful completion and operation of Terminal 3. Therefore, CAC requested that the design consultants NACO/ECG investigate and evaluate three scenarios for the renovation of Terminal 2
![]() |
For Noise prediction and modeling we use the most updated INM integrated noise model for accurate results to measure and predict noise levels for several years to estimate the annual increment and availability of airport usage.

For Air Quality we used a prediction model depend on the air pollutants in Egypt and the
prevailing wind direction over the greater Cairo area is from the north. At the Cairo International Airport north-north-westerly winds are dominant in the summer months, while southerly and westerly winds also prevail in the winter months, directing pollution from the airport away from the city. Mostly, the airport is upwind from the major air pollution sources in Cairo. The air quality in this area will thus be fairly clean compared to the high concentrations of air pollutants frequently observed in Cairo and have a minimum significant impact on the surrounding residential areas.
|
|
|
|
|
For Traffic the purpose of the TAI studies is to assess the traffic impacts on any proposed development of a roadway. This part presents the assessment of the traffic impacts on the proposed project (Airport TB2 for updating and modernizing) to be implemented in the surrounding road network of Cairo Airport.
The main objective of this study is to assess the impacts of the traffic generated by the terminal modernizing in the Cairo Airport during the construction and operation periods on the surrounding road network of the Airport.

Surface water as a result of the operation of TB2 due to the arid conditions and therefore, low annual
mean rainfall is experienced at the site. Limited rainfall means there are no permanent water bodies within the immediate vicinity that would receive contaminants collected in surface water that’s why we need to limit and recycle this water.

The ESIA is expected to play an increasing role in ensuring that the project meets sustainability criteria throughout constructing new building and new runway. Identifying potential adverse environmental impacts, as well as enhancing potential environmental benefits will achieve this objective. Identifiable environmental impacts are assessed according to a hierarchy of environmental management techniques. Where an adverse environmental effect cannot be avoided, the project has endeavored to minimize, remedy and/or mitigate the impact.

For Noise we predicted the noise levels for the 25 coming years with INM program to ensure
that the new building will be suitable for passengers’ increment and Noise generated from the operation of new building and new runway will not likely be a significant environmental impact for surrounding residential areas, compared to other noise generating activities at Sharm el sheikh airport. This is largely due the fact that the new building and new runway activity itself will emit little noise
and Noise Sensitive Receivers (NSRs) are some distance from the new building and new runway facility.

For Air Quality the modeling domain covers the area between longitudes 23 o: 40o E and latitudes
22o: 35o N, more attention is paid to the closer area to the Power plant location as internal nested domain. The vertical resolution is 32 levels between ground surface and 100HPa (~16km aloft).

![]() |
For waste water we need took in consideration that reduce heavy rain impact and recycle the waste.

A comprehensive study was done for the development of the air traffic in Greater Cairo and Sharm El-Sheikh. This includes construction of new runways. This development totally changes the air traffic map of these major cities. Out of this concern MB utilized a special Integrated Noise Modeling Software for special prediction of noise generated due to air traffic. This study included the following:
1. Measurement of noise inside the airport in many locations: including the tarmac, the run way, the departure and arrival halls and the surveillance tower and residential areas.
2. Measurement of noise at different locations outside the airport, putting in minds the airplane route corridors and track.
3. Analysis of the measured data to find out noise emitted by each airplane brand, to determine which airplanes should not be used in Egyptian Airports according to the law and international standards.
4. Full Noise prediction using suitable noise metric units for easy management of land use planning so that no inconvenience is caused to the inhabitants.
5. Evaluation and deciding the best measures and techniques to reduce noise inside working and waiting areas within the airport and around
6. Providing protection measures for workers operating close to airplanes.
The study continued for some months, and a plan for providing "Online Noise Measuring and Analyzing Equipment" for airports close to residential areas was recommended, It will be implemented within the next development plan for airports.
|
|
|
|
|
|
|
Output Example: Prediction of Noise for Cairo Airport and Noise Measurements Locations. |
Output Example: Noise Prediction of Sharm El- Sheikh Airport and Noise Measurement Locations |
The Egyptian Holding Company for Airports and Air Navigation (EHCAAN) has received a loan equivalent to U.S $ 335 Million from the International Bank for Reconstruction and Development (IBRD) and intends to apply part of the proceeds of the loan to payments under the contract for the technical assistance of "Fixed Manual Temporary Noise Measurements" for third terminal at Cairo International Airport (TB3), and a new terminal at Sharm El Sheikh Airport (SSH).
With the selection of MB to perform this project, a plan to perform the Fixed Manual Temporary Noise measurements for TB3 SSH has been performed for a time scale of four months, which generate a comprehensive database for the intended permanent automatic noise monitoring stations at the best selected locations for both airports.

|
Code |
Description |
|
|
|
CAI02 |
Demography center at El-Mokatem |
||
|
CAI03 |
At CO-OP Oil Station – El-Mokatem |
||
|
CAI04 |
Al-Abassya – at engineering industry Co. |
||
|
CAI05 |
InternationalGarden at Naser city |
||
|
CAI06 |
High building next to telephone central of Nasser city |
||
|
CAI07 |
Traffic #2 NaserCity |
||
|
CAI08 |
Social building beside El-Ahly Club |
||
|
CAI09 |
ElectricHospital – Misr Suez Road |
||
|
CAI10 |
At JW Marriot – Misr Suez road |
||
|
|
|||
|
CAI11 |
Sheraton heliopolios area |
||
|
CAI12 |
At Mobil Oil Station - Autostrad |
||
|
CAI13 |
Shell at Ismalia desert Road |
||
|
CAI14 |
05R Ref |
||
|
CAI15 |
Tarmac of TB2 |
||
|
CAI16 |
Tarmac of TB1 |
||
|
CAI17 |
23R Ref |
||
|
CAI18 |
05L Ref |
||
|
CAI19 |
El- Salam City (El-SalamPrimary School) |
Noise Measurement Locations for
Sharm El-Sheikh International Airport:
|
Code |
Description |
|
|
SSH01 |
Horizon hotel |
|
|
SSH02 |
Hausa Hotel |
|
|
SSH03 |
Nubian village |
|
|
SSH04 |
Concord Al Salam |
|
|
SSH05 |
Logona Vista resort |
|
|
SSH06 |
Coral see resort |
|
|
SSH07 |
Al salam hospital |
|
|
SSH08 |
International plant at Sharm. |
|
|
SSH09 |
Al- Diwan Resort |
|
|
SSH10 |
Softel |
|
|
SSH11 |
Beach Albatros |
|
|
SSH12 |
Control tower |
|
|
SSH13 |
Pyramisa Hotel |
|
|
SSH14 |
Dominica coral Bay |
|
|
SSH15 |
Marine Sports club |
|
|
SSH16 |
04R reference |
|
|
SSH17 |
22L reference |
|
|
SSH18 |
Terminal building |

Cairo, Nozha, Sharm El Sheikh, Taba and Aswan airports were all put on an environmental auditing plan in order to measure, analyze and study the current environmental status from the noise point of view. The study was to contain the following points:
1. Measurement of noise inside the airport in a many locations including the tarmac, the run way, the departure and arrival halls and the surveillance tower.
2. Measurement of noise at different locations outside the airport.
3. Analysis of the measured data to find out the noise emitted by each plane brand, for easy analysis.
4. Noise survey for the mentioned airports to evaluate and estimate the noise hazardous in the Egyptian airports.
![]() |
The Government of Egypt (GOE) decided to implement an extensive modernization program
for the major Airports in the country. Alexandria Governorate as the second largest business center in Egypt is currently served with Al Nozha Airport and Borg El Arab Airport.
![]() |
|
Output Example: Noise contour for flight operations of the year 2009 |
Output Example: Noise contour for flight operations of the year 2014 |

Al-Alamin International Airport can accommodate middle-sized aircrafts. As well as large size aircrafts.
Al-Alamin International Airport is important because of its existence in the middle of the north coast so it's very important to study the environmental issues which will affect the area of airport and the surrounding due to the fact that this area of the north cost is one of the best areas at the sea.
The main objective of the EIA is to examine the biophysical and the socio-cultural environment in the surrounding area of the project to ensure that possible positive impacts are magnified and negative impacts together with the required mitigation measures during different phases of the project are identified.
![]() |
|
Output Example: Noise contour for flight operations of the year 2004 |
Output Example: Noise contour for flight operations of the year 2014 |

![]() |
It is proposed to Connect Makah, Madinah and Gedah passing through Islamic places in Saudi Arabia by High speed railway to serve Hogag and increasing the Religious Tourism.
![]() |
![]() |

![]() |


![]() |

It is proposed to conduct a site survey to understand the current soundscape at the proposed site of the Abdali Tower located in Jordan. The tower site is close to many existing busy roads. The effect of these roads on the site is not clearly understood.
|
|
|
|
|
|
|
|
AbdaliTower area with the measuring locations |
|
Layout for the new Abdali Tower |
|
|
|
|
|
|
|
|
|
Output Example: Noise Filled Contours for Abdali towers in Lden |
|
Output Example: Noise Gradient Contours for Abdali towers in Lden |
|
|
|
|
![]() |
MB Consultant performed an Environmental Impact Assessment (EIA) for the West Wing on
behalf of the Japan International Cooperation Agency (JICA) and the Higher Committee (H/C) for Greater Cairo Transport Planning.
The objective of the EIA was to identify, present and predict the environmental consequences of the proposed traffic project, and to assist in planning appropriate mitigation measures and monitoring programs to reduce the adverse effects and maximize the environmental benefits.
This was accomplished by the following:
·Describe and record the present status of the environment in the area of the project; i.e. (baseline data).
·Describe the traffic mobility and assess its potential impact on the surrounding environment.
·Identifying appropriate measures to mitigate adverse environmental impacts.
·Provide an environmental statement to support planning application to the appropriate authorities.
·Analysis of environmental data and evaluating its importance.
·Evaluation of potential environmental impacts.
·Formulation of recommendations for mitigation of impacts and environmental monitoring.
Air Quality, Noise Level and Social Surveys were performed, the results helped to reveal the present environmental condition, socio-economic condition of the project area and the potential impacts expected from the proposed Supertram Project from Imbaba to 6th of October City.
|
|
|
|
West Wing Route and Measurement Locations

MB Consultant performed an Environmental Impact Assessment (EIA) for the Eest Wing on
behalf of the Japan International Cooperation Agency (JICA) and the Higher Committee (H/C) for Greater Cairo Transport Planning.
![]() |
MB Consultant performed an Environmental Impact Assessment (EIA) for the Super Tram on
behalf of the Japan International Cooperation Agency (JICA) and the Higher Committee (H/C) for Greater Cairo Transport Planning

Super Tram Route and Measurement Locations


|
A noise contour map the super tram without barrier |
Noise contour map the super tram with straight glass barrier 2m height |
![]() |
CREATS Cairo Regional Area Transportation Study, which is under the supervision of the Ministry of Transportation, has conducted the largest study for traffic, first of its kind and magnitude in Egypt, which was part of a master plan to develop traffic in Greater Cairo. The study included a full environmental measurement and assessment.
A multitude of environmental parameters were to be measured at 30 different locations in Greater Cairo, for 135 consecutive days, 24 hours a day. A huge team was established to perform the task which came out as "outstanding" according the steer committee of CREATS.
SO2 , CO , NOx , PM10 , PM2.5 , O3 , Metrological Conditions and Noise level was measured. Two mobile labs with latest gas, particulate matter, noise level measuring devices was used. The program went punctually according to the time schedule where our team was on the street around the hour for the whole measurement period.
3.5 million readings for air quality measurements, 0.5 million readings for noise level and a 1700 page report was submitted in three large box files were the results of this project.
Al Azhar Tunnel is a National Project with the aim to change the traffic pattern dramatically of an area of 20 Sq. Km. It consists of two main tunnels and an extra service tunnel.
We studied the effect of the tunnel in 3 aspects:
1. Its effect on the reduction of the noise level downtown in Al-Attaba, Al-Darrasa and the Central Business District (CBD) of Greater Cairo after the tunnel works.
2. Its effect on the air pollution and its reduction within the same areas.
3. Its effect on the traffic pattern and how it is contributed to ease the flow of vehicles in one of the most crowded places in the world.
MB recommended a further study of the Noise and Air Pollution within the Tunnel itself after it works. This recommendation now is under consideration of the Tunnel Authority.
![]() |
|
|
|
|
A 3D model for a road segment without Barrier

A noise contour map for a road segment without Barrier

A 3D model for a road segment with Barrier
39

A noise contour map for a road segment Case 1

A noise contour map for a road area 1Km*1Km with Barrier
![]() |
A full and comprehensive environmental impact was needed for the construction of SidiKrir Power Plants in Alexandria. A project that went on for 3 years from the design phase till both plants went into service. Several measurement points were determined to give a clear picture of the effect of the Plant on the surrounding environment and residents. These points were measures for 3 days 24 hours. It was repeated several times:
1. Before construction of any of the plants.
2. After construction and testing of Units 1 & 2.
3. During construction of plant 3 & 4.
4. After construction and testing of 3 & 4.
The study was used to verify the eligibility of the plants in the environmental point of view in this area.
Cold Reheat Pipeline in Sidi Krir Power Plant Units 3 & 4 `
In 24 hours after the notification of a need for prompt vibration measurements for the cold reheat pipeline in side Units 3 & 4 – SidiKrir Power Plant, MB team moved with all necessary equipment to start measurement on this 7 storey high pipeline. The pipeline had possessed low frequency vibrations that had to be treated. We issued a full report of the measurement results, figures and graph in the same day.
POWER PLANTS NOISE PREDICTION CODE
MB posses the latest software to predict both outer industrial noise and noise due to traffic complying to ISO 9613 1/2 for outside noise calculations for industry and traffic. By inserting the data available from the Power Plant contractor (in the design stage) and estimating other data based on our prolonged experience, into the software a full noise contour map was the output. The map shows the effect of the plant from the noise point of view on the neighborhood. This is then used to modify the current design, such that this effect is reduced below the law limits. The figure below is the primary prediction map for the project.
This prediction study was done for the following Power Plants:
·Cairo North Base.
·Cairo North Extension.
·El-Nubareya Power Plant.
·El-Kuraimat Power Plant.
·New Talkha Power Plant.
This study enables the owner to quantitatively assess the impact of his Power Plant on the surrounding environment and thus insert necessary modifications in the design stage, which is obviously cost effective.
This study is enforced by baseline measurements at various locations to give a clear picture of the current status and set priorities of the noise abatement plan if needed.


Example of a Power Plant Model Using the Predictor™

Private owned Sidi Krir Power Plant Units 3 &4 in Alexandria had to comply with both the local and international Occupational Health Standards. They had to make sure that all the machines supplied by the vendors must produce noise within the industrial noise limits. An individual investigation for each machine separately was made. This included measurement and analysis to verify the sole effect for each machine although they are all running in the same vicinity at the same time. More than 400 measuring points were appointed around pumps, fans, valves and the turbo-generators. The octave band analysis was used to define the effects of the machines and the backgrounds then a health report for each machine separately was issued with verdict if this machine was eligible for the occupational health working conditions or not.
MB team has also studied the acoustics within the control room and came up with recommendations to deal with the noise level problems in this room.
A noise contour map was drawn for the plant vicinities to give a true picture of the noise level within the Plant and the effects of the machines on the operators of the Plant.

It was required to accomplish a comprehensive acoustic study for three equipment buildings in the gigantic project of Cairo Wastewater. It was also required to study the effect of these buildings on the surrounding ones.
This task was full of restrictions where we could not change any details concerning the civil construction not to mention it was time critical. Although it was required to squeeze the time taken to study this project we finished 2 days earlier with a full comprehensive report with all recommendations and drawings.
The construction was a consortium between Degrémont and Arab Contractors. Below is a snapshot of a 3-D model for the simulation of the buildings showing all the noise sources and buildings involved.
Three types of calculations where used, using the state of art technology. Predictor™ and Odeon Software were used in addition to a multitude of acoustic calculations
|
|
||
|
|
|
|
|
|
||
|
|
|
|
|
|
||
Acoustical Model for the surroundings using the Predictor ™

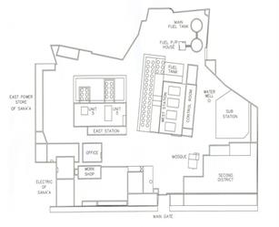
The Public Electricity Corporation of Yemen (PEC), a state owned enterprise, is presently planning to undertake implementation of the proposed Sana'a Emergency Power Project with financial support of the International Development Association (IDA), an affiliate of the World Bank Group.
The objective of the project would be to improve the availability and reliability of electricity in greater Sana'a, which is currently subject to serious power shortages. These shortages of electricity have various adverse environmental. Temporary measures to correct the problems have included development of an interconnection with Ta'iz and Aden; however, transfer of electricity from these cities is resulting in further disruption of energy availability at increasing number of locations. The rapid expanding use of small generators in Sana'a to overcome the impact of power shortages is one example of adverse effects, which will have significant local impacts to air quality and noise.
.
|
|
||
|
|
|
|
|
Layout for the power plant area |
|
The power plant model |
|
|
|
|
|
3D Model for the power plant |
|
Noise filled contours for the power plant |

![]() |
|
Output results of Auditorium at 1000 Hz |
|
|||
|
|
||||
|
|
||||
|
|
||||
|
|
||||
|
|
||||
|
|
||||
|
|
||||
|
|
||||
|
|
||||
|
|
||||
|
|
||||
|
|
||||
|
|
||||
|
|
||||
|
|
||||
|
|
||||
|
|
||||
|
|
||||
|
|
||||
|
|
![]() |
|||
|
|
||||
|
|
||||
Description: TLC Schoolin Qatar Golf area it includes a number of class rooms, Lecture rooms, Library, large auditorium, sport area, Media production rooms and other student facilities with full design details.
TLCSchoolhas been designed to achieve certain Acoustical requirements; these requirements can be divided into two main subjects: Room Acoustics, Isolations from incoming surrounding Noise Sources. All Audio Visual of the building has been designed.
|
Location |
Scope Duration |
Estimated Value |
Owner |
Client |
|
Qatar |
2007 - 2008 |
3500000 USA $ |
Qatar Foundation |
|
Scope: Acoustic design and Audio visual

This work intended to reduce the noise level in the MARINA mall in Kuwait through active noise control techniques, executive measurements in the mall was done to find the cause of high noise level.
Some data were not available and has been assumed. After reviewing all the existing technologies only the passive control can be used for such enlarged area cases.
Three cases were studied using a suitable software for noise prediction :-
Case 1: The current situations without any change to validate our assumption
Case 2: Removing the fountain at the middle
Case 3: Adding new absorbing material and a new stand instead of the fountain
|
|
|
|
Layout for the Mall

Case 1: The current situation Case 1: Acoustical performance of the current situation
![]() |
Case 2: The current situation without the fountain Case 2: Acoustical performance without fountain
![]() |
Case 3: The modified solution Case 3: Acoustical performance for the modified solution

IMAX, being a leading firm that designs and builds 3-D movie theatre equipment, was selected to build the first movie theatre of this kind in the Middle East. They had very strict acoustic conditions for the implementation of the system. MB office made a full design of the inner acoustic material, where every little detail was constructed and revised to be acoustically compatible with IMAX's standards.

|
IMAX requested a Reverberation Time of 0.5 seconds at 500 Hz. After we designed the inner acoustics we were able to reach 0.25 seconds at 500 Hz. A computer software was used to verify this, which came with a full simulation of the inner acoustical status of the building.
![]() |
|
|
|
|
|
|
|
Acoustical Performance of C1 at 8000 Hz |
Acoustical Performance of C2 at 1000 Hz |


Grand Egyptian Museum survey and Acoustic review
|
Scope: Environmental noise survey for good design and review acoustic design
|
|
Location |
Scope Duration |
Estimated Value |
Owner |
Client |
|
Cairo - Egypt |
2005 |
2 billion LE |
Ministry of Culture |
|
·A full review for acoustic design by BuroHappold limited –UK through consulting firm EGEC in Egypt That includes review for all spaces inside the grand Egyptian museum years 2007-2008
|
Abdali Towers Jordon
|
|
|||
|
|
|
|
|
|
|
|
Layout for the new AbdaliTower |
|
Output Example: Noise Filled Contours for AbdaliTowers in Lden |
|
|
|
|
|
||
DESCRIPTION: a full site survey was conducted at the proposed site of the AbdaliTower located in Jordan. The tower site is close to many existing busy roads. The effect of these roads on the site is not clearly understood and used fully at the design of all area specification including cinemas
|
Location |
Scope Duration |
Estimated Value |
Owner |
Client |
|
Jordon |
2004 |
2 billion USA $ |
BuroHappold Limited - UK |
|
Scope: Environmental impact assessment & full noise prediction used for building design

![]() |
|
Location |
Scope Duration |
Estimated Value |
Owner |
Client |
|
Egypt |
2002 & 2008 |
2.5 billion LE |
Greater Cairo Wastewater Project (CWO) |
Degrémont-France |
Scope: Full acoustic design

![]() |
Description: ِ a full review of the acoustic performance and isolation for some buildings at Cairo international airport was performed.
A full Technical Support during architectural design and construction was done A comprehensive acoustical solution was performed.
The study includes the flowing buildings 1- Sky Way
2- ApronTower
3- LinksBuilding
4- HotelBridge
5- Terminal
6- DomesticBuilding
7- Fingers
8- Concourse
9- VIP lounge hall
|
Location |
Scope Duration |
Estimated Value |
Owner |
Client |
|
Egypt, Cairo |
2002 & 2008 |
400 million $ |
Aviation ministry |
TAV ( Turkey )
|
NOISE SOLUTION for a Generator Room at Aida Beach Hotels
The generators in Aida Beach Hotels, Egypt, caused great annoyance to the visitors and neighbors. Our Job was to:
1- Visit the site and perform noise measurements
2- Create a model by using ODEON™ for the generator room
3- Create a model by using the PREDICTOR™ for the surrounding area 4- Analyze all data
5- Establish an effective, but economic solution
The Generator caused too high noise level, and hence adequate noise insulations were suggested. After applying the suggested modifications in the generator room, the noise level reached an acceptable value as per Egyptian Law.
Acoustic Model for the generator room using ODEON ™

|
|
|
|
|
|
|
|
|
|||
|
Before |
|
|
|
After |
Upon request from the owner to find out a solution for the noise impact generated from both the boat activity generators room and other activities on the clients cabins which will bother the clients and exceed the permissible limits listed in the Egyptian Environmental Law No.4 Noise annex No. 7, we submit this report to accurately find the best solutions for the noise problem at Karma boat.
|
|
|
|
|
|
|
|
|
|
|
|
||||
|
|
|
|
||||
|
|
|
|
||||
|
|
|
|
||||
|
|
|
|
||||
|
|
|
|
||||
|
|
|
|
||||
|
|
|
|
||||
|
|
|
|
||||
|
|
|
|
||||
|
|
|
|
||||
|
|
|
|
||||
|
|
|
|
||||
|
|
|
|
||||
|
|
|
|
||||
|
|
|
|
||||
|
|
|
|
||||
|
|
|
|
||||
|
|
|
|
||||
|
|
||||||
|
|
Acoustical Performance SPL(A) |
|
|
Acoustical Performance at 1000 Hz |
|
|
|
|
|
|
||||

Results at receivers inside the staff room

![]() |
Complains from nearby residents to the CNG filling station in Mostafa El Nahhas St. lead to the governmental decision of shutting down the plant if the owners did not take suitable measures to reduce the noise levels produced by the machines (compressors) in the station. The noise levels there was measured to be 75 dB(A) at the points of complain. After detailed study and analysis of the acoustic status of this station, MB came up with certain recommendations and redesigns to reduce the noise level. We supervised the implementations of these recommendations. The result was a stunning more than 20 dB (A) reduction. The reading at the same point was 53 dB (A)!
This gave permission for the station to continue operating, and more than that the complaining residents withdrew their complains.
Due to continuous complaints from residents living next to this fun town, the Ministry of Environment in Egypt took a decision to shut down this facility. We had a different point of view!
A 6 months project plan was constructed to measure, analyze, and implement a noise abatement plan for the fun town. The plan pointed out several stages:
1. Defining the exact noise sources and their acoustic properties.
2. Relocating some of the fun machines and shops that produce irritating noise such that some screening effect would reduce the noise level.
3. Treatment of the mechanical parts within these machines when necessary.
4. Treatment of the speakers used and introducing methods of control.
5. Adding green areas and other natural screens that would affect the noise level at the points of complain.
6. Updating a report on the noise level status monthly to make sure the Fun Town was running according to law.
This plan was implemented successfully, that the Ministry gave permission for the town to reopen, on the condition of monthly positive reports. This major step gave revenue to all the costs of the acoustic study plan and implementation.
![]() |
The Egyptian Glass Factory is the major Glass Sheets manufacturer in the Middle East. It contained a fan room consisting of two immense fans of 200,000 m3/h capacity. The fans produced a noise level of 120 dB(A) which was required to be reduced to 95 so as to reduce its effect on the adjacent control room and lab.
Using B&K Pulse™ which is a 16-channel portable measuring device we were able to measure vibration and noise simultaneously in several points. We were able to investigate how much noise was induced by vibraion and how much was air-borne
A detailed study was performed to reduce the noise level in the room. The solutions were innovative as it was required to implement the remedies online while the fans were operating.
NOISE INSULATION for a Bank's Air Handling Unit
The air handling unit of a large bank in Nasr City, was a main source of disturbance for the residents around the bank. Their complaints were taken into consideration, and MB Consultants were assigned to the task.
The measurements indicated a higher than acceptable noise level, according to the Egyptian Law of Environment 4/1994.
Suitable isolation methods were suggested for the main sources of noise.
After the isolation works were conducted, the noise level was acceptable by both, the law and the residents.

Location of the Bank
|
|
|
|
|
|
|
The barrier used for AHU |
Louvers for Compressor Room |
|||
Noise Control for Arabella Villages
Upon request from the owner to find out a solution for the impact generated from the celebration hall located in the heart of the area allocated for the Arabilla villages affecting the near residents (Villas) due to the transmitted noise signals, we present this report regarding the noise measurements and prediction inside the Arabilla village to clarify the situation based on the current noise sources and find out the solution from the noise point of view.
|
|
|
|
|
|
|
|
Measurement locations inside the country club |
|
One suggestion of the wall barrier |
|
|
|
|
|
|
|
Noise Filled Contours Noise Gradient Contours
The installed1.5 lead sheet panel barrier plan view
|
|
It is proposed to evaluate the situation of FaisalBankTower from the noise point of view regarding the chillers and cooling towers units located on the tower roof and evaluate its effects on the near residents below the roof floor.
Noise signals are transmitted to the neighbors through the duct house of the building causing much annoying noise, also the solutions will be discussed and evaluated.
MB has accomplished the noise measurements and prediction inside Faisal bank tower to clarify the situation based on the current noise sources (Chillers).
It is proposed to conduct a site survey to understand the current soundscape at the proposed site of the grand Egyptian museum. The museum site is close to an existing busy road on one aspect, residential section to the other and a military base and shooting range at each end. The effect of these on the site is not clearly understood, these measurements is a unique in this respect.
This was accomplished by the following:
·Doing a site investigation for the residential area locations from the noise point of view to get a beneficial and meaningful indication of noise and vibration levels.
·Conducting the selected measurement locations simultaneously as a spot measurement in 15 minutes sample for each location for 24 Hrs.
·Satisfying all the standard statistical parameters and criteria (LAeq, LAFMax, LAFMin, LAF01, LAF10, LAF50 and LAF90) and spectral sound pressure levels in third octave bands.
·Analysis of noise measurements data to determine its effect on vibration levels.
·Vibration measurements along the fence and the existing building to accurately determine the effect of traffic flow (For Vibration Measurements: Measured parameters levels during different periods in RMS .and Third-Octave analysis.
·Generate a relation between the traffic flow and sound &vibration level transmitted to the museum site.
![]() |
Grand Egyptian Museum area & measurement locations.
|
|
|
|
|
|
|
|
|
|
Example for Noise 1/3 Octave measurement reading. |
|
Example of vibration third octave. |
|
|
|
|
|
|
|
|
|
|
|
Example for Noise Measurements Photos |
|
Example for Vibration Measurements Photos |
|
Upon request from the ACPD Group to find out if there is an impact generated from the electromechanical room on the cinemas, report has been generated to out line the results of our review and analysis of Noise levels and vibration levels for Nile City Cinemas.
|
|
|
|
|
|
|
Example for Noise 1/3 Octave measurement reading. |
Example for vibration 1/3 Octave measurement reading. |
![]() |
Location of the site
Data was gathered on vibrations currently being experienced on a critical points shown Acceleration, Velocity and Displacement with frequency range 1 - 200 Hz at all points.
All points were measured in two directions (Vertical & Horizontal).
Measuring, analysis, and evaluate the vibration condition of 10 points on MR steel structure
For auto-spectrum the Overall value is taken for range 10Hz to1KHz. But we focus the result on the graph to 1-200 Hz

![]() |
Location of the site and proposed site development in Egypt
Complete noise assessment (Noise measurements and noise prediction contour map) for the proposed plant & traffic and evaluate the whole situation from the noise point of view, Classification of site environment, Establishing base line noise level, Description of the mitigation measure in design stage, construction stage and operation stage. Assessment of future expected noise levels (Noise impact model).
Identifying the impact of the noise due to the noise sources on the nearby residential area and applying the right procedures of mitigation in order to maintain the stability of acceptable sound level limits of Egyptian environmental law no 4/1994.
![]() |
The (ESIA) Environmental Social ImpactAssessment study is to examine the socio-cultural, economic, physical, and biological impacts in the areas which may be affected by the proposed project. For this unique project which connects Makkah and Medina via Jeddah with a commercial operating speed of 320km/h for long distance reach to 450 km requires being in full details and very accurate study.
ESIA study included analysis, impacts discovering, and mitigating such harmful impacts for Noise and vibration, Air quality, Traffic, social, water, and solid waste management during the construction and operation phase.
For Noise and Vibration the study must pass on several stages during construction and operation phase then to find the suitable mitigation method to reduce significant impacts in this project we have three levels for noise prediction:
1- Without the train ( current situation )
![]() |
A noise contour map at the current situation
2- With train (after operation )
![]() |

A noise contour map during operation
3- After adding noise barriers ( mitigation method )
![]() |
A noise contour map with adding Barrier
By this method we will cover some residential areas to reduce the noise impact for surrounding area. These prediction procedures follow many complicated calculation methods to give accurate results.
For vibration we measure horizontal and vertical vibration signals and put the suitable absorbing materials to reduce vibration impact.

![]() |
The Maine sport center at new campus of AUC new Cairo is one of the largest and biggest sport center in Cairo, the Audio- Visual component for it, need a full design, calculation, as well as a supervision for the erection process also it need testing and commissioning, we been involved in such a process in 2009-2010 and the full projects was completed and tested in full.
The component of the project was designed, full simulation was constructed, and detail specification was passed to vendors, evaluation for best tender was done and testing and commissioning was performed ; the results was good and it is working now in good shape.The STI, SPL was measured and was found to be as required.
The Maine component of the project was as follows:
Indoor
1- ARTOC main gym
2- Teaching gym
3- Aerobics room
4- Squash spectator
5- Multipurpose room
6- Instruction rooms
Outdoor
7- Main football stadium
8- Secondary sport practice field
9- Tennis court, volleyball courts & handballs court
10- Basketball court
11- Swimming pool
1. A) A computer model was built in the acoustic simulation software (EASE4.3) with the dimensions of the area. In the following pictures we illustrate the wire frame graphics.
![]() |
1. B) Speakers data:-
The following table and figure show the type, location, power and aiming of the Loudspeakers in this area.
|
Speaker Description |
Speaker model |
QTY |
|
3-way speaker 50Hx20V , 400W |
Community, R2-52Z+TRC400 |
10 |
|
2-way speaker 90Hx40V , 200W |
Community, R5-94Tz |
14 |
![]() |

Direct SPL (Plan View)
![]() |
SPL distribution
AUC - Basketball Acoustic Study
1. A) A computer model was built in the acoustic simulation software (EASE4.3) with the dimensions of the area. In the following pictures we illustrate the wire frame graphics.
![]() |
1. B) Speakers data:-
The following table and figure show the type, location, power and aiming of the loudspeakers in this area.
|
Speaker Description |
Speaker model |
QTY |
|
3 way speakers , 200Watt |
Community, R.5HPT |
4 |
![]() |

![]() |
SPL distribution
Swimming Pool Acoustic Study
1. A) A computer model was built in the acoustic simulation software (EASE4.3) with the dimensions of the area. In the following pictures we illustrate the wire frame graphics.
![]() |
1. B) Speakers data:-
The following table and figure show the type, location, power and aiming of the loudspeakers in this area.
|
Speaker Description |
Speaker model |
QTY |
|
3-way speaker 50Hx20V , 400W |
Community, R2-52Z+TRC400 |
4 |
|
2-way speaker 90Hx40V , 200W |
Community, R5-94Tz |
4 |
![]() |

![]() |
SPL distribution
Tennis, Handball & Volleyball courts Acoustic Study
1) Tennis Court
1. A) A computer model was built in the acoustic simulation software (EASE4.3) with the dimensions of the area. In the following pictures we illustrate the wire frame graphics.
![]() |
1. B) Speakers data:-
The following table and figure show the type, location, power and aiming of the loudspeakers in this area.
|
Speaker Description |
Speaker model |
QTY |
|
3-way speaker 50Hx20V , 400W |
Community, R2-52Z+TRC400 |
3 |
![]() |

![]() |
SPL distribution
2) Volleyball Court
2. A) A computer model was built in the acoustic simulation software (EASE4.3) with the dimensions of the area. In the following pictures we illustrate the wire frame graphics.
![]() |
2. B) Speakers data:-
The following table and figure show the type, location, power and aiming of the loudspeakers in this area.
|
Speaker Description |
Speaker model |
QTY |
|
3-way speaker 90Hx40V , 200W |
Community, R.5HPT |
4 |
![]() |

Direct SPL (Plan View)
![]() |
SPL distribution
3) Handball Court
3. A) A computer model was built in the acoustic simulation software (EASE4.3) with the dimensions of the area. In the following pictures we illustrate the wire frame graphics.
![]() |
2. B) Speakers data:-
The following table and figure show the type, location, power and aiming of the loudspeakers in this area.
|
Speaker Description |
Speaker model |
QTY |
|
3-way speaker 90Hx40V , 200W |
Community, R.5HPT |
3 |
![]() |

Direct SPL (Plan View)
![]() |
SPL distribution
Photo for the project
![]() |

Basket court

![]() |
Maine Gym

![]() |
Swimming pool